Lot 5 - Cloonkeary, Ballinrobe, Mayo, F31 RH90

  • Unconditional Online Auction Sale
  • AMV : €130,000
  • Bedrooms: 5

For sale by online auction on 26th August 2021

Description

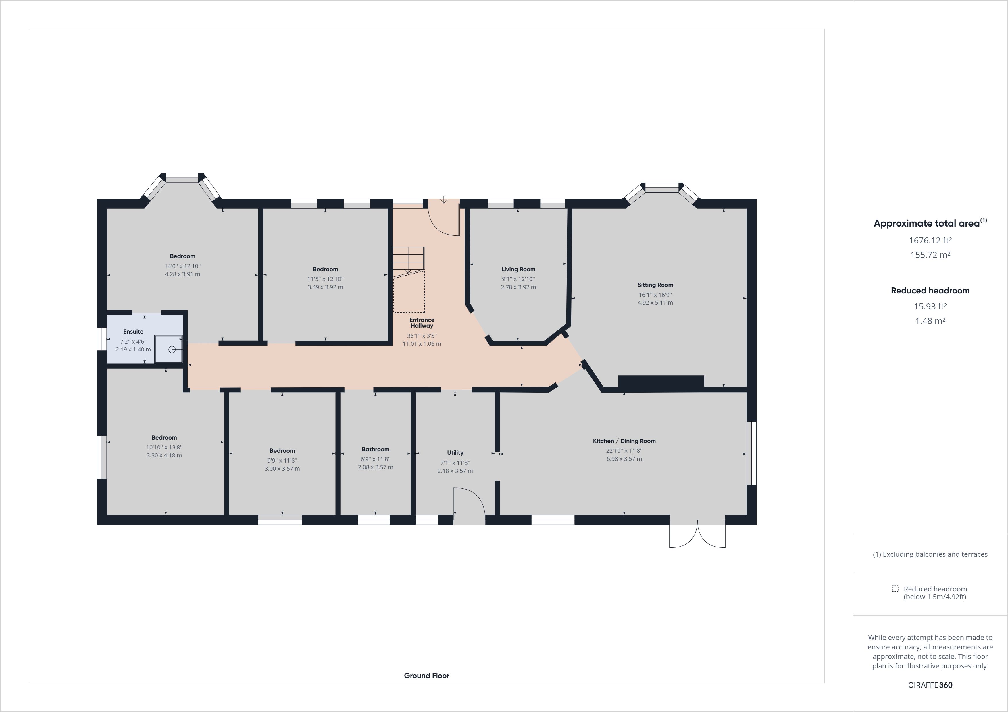
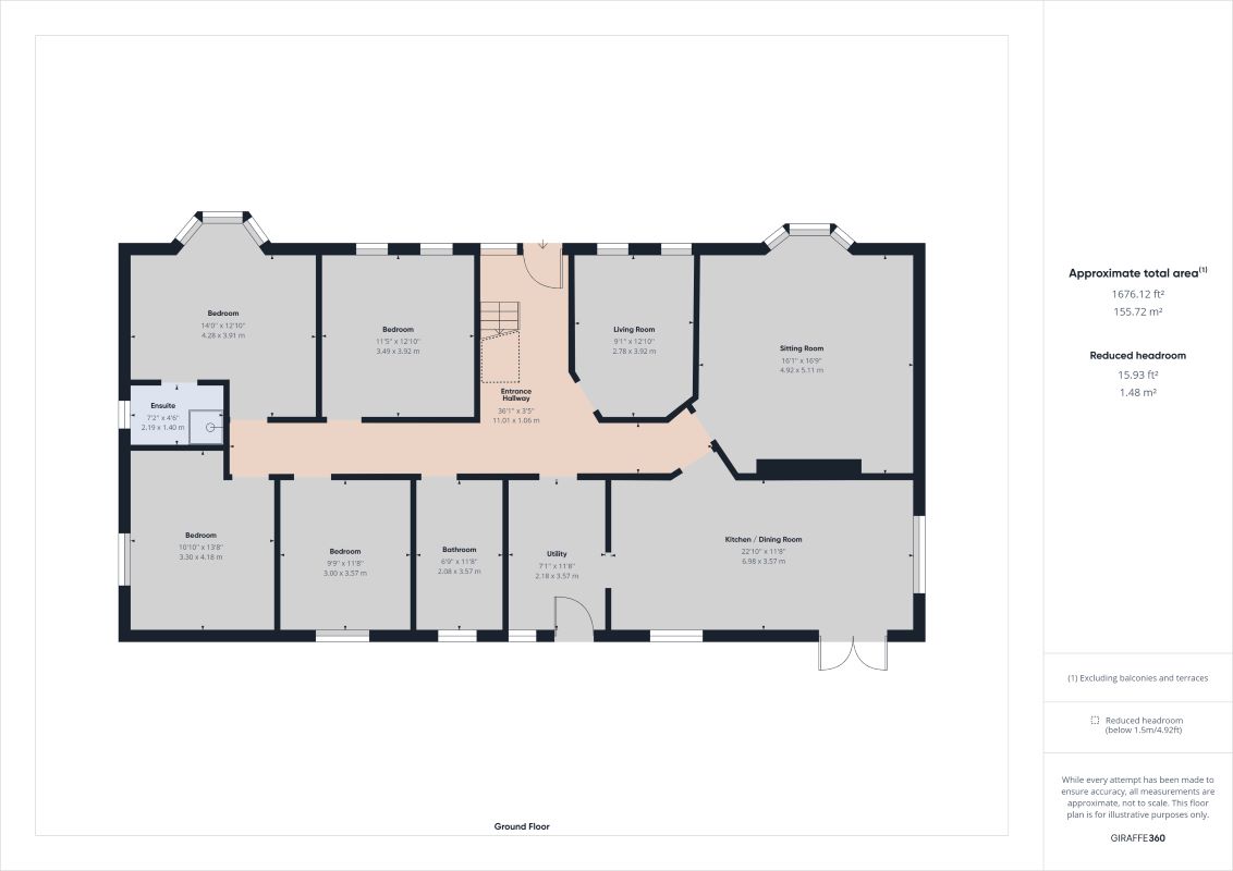
This detached 5 bedroom property is unfinished internally, offering the purchaser an ideal opportunity to put a personal finish on an otherwise spacious and well appointed home. Set on 0.64 of an acre in lush countryside, it offers a tranquil location and enviable views.

The property lies 4.4 km North West of Ballinrobe and approx 1.3 km off the N84 Ballinrobe-Castlebar road. Both Ballinrobe and Castlebar are busy towns with schools, shops, restaurants and transport links.

TOTAL FLOOR AREA: 245.000 SQ MTRS / 2637.180000 SQ FT

BER No: 113914246

Loading the bidding panel...

Terms & Conditions to bid on this Property

Office Contact

Robert McGreal
091-395300

Vendors Solicitor

Mr. Adam Duggan, Field Fisher Solicitors, The Capel Building, Mary's Abbey, Dublin 7 D07 M4C6
018280683

Related Documents

Virtual Tour

View a Virtual Tour

Make an Enquiry

Submit an enquiry and someone will be in contact shortly.

 
*  
*  
*
*
*

Share